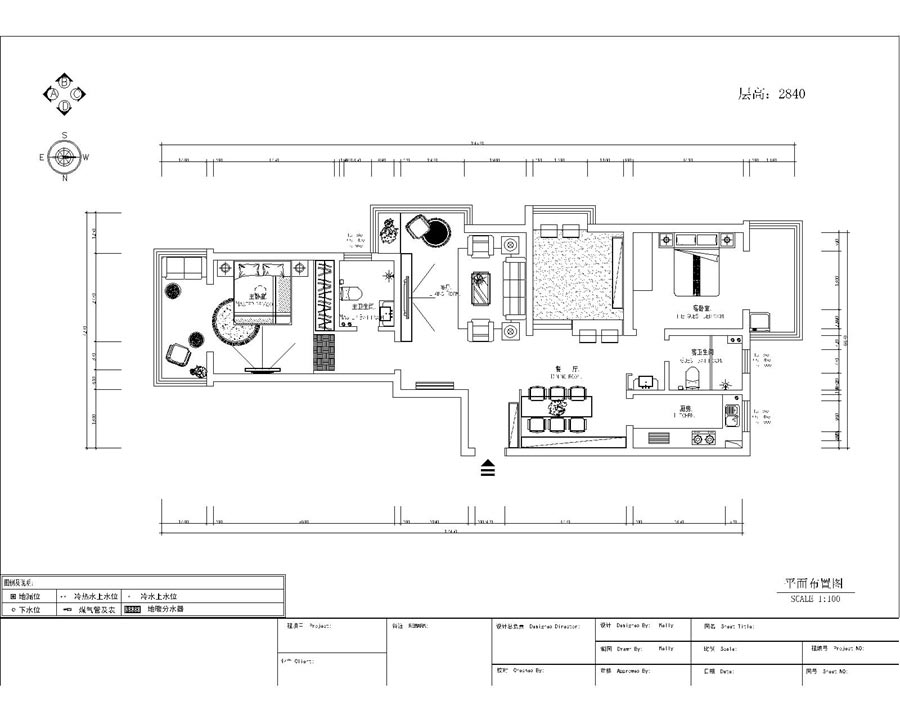
戶型:三居 3#C戶型
-
日期:2016-04-28
-
點擊:1011
戶型分析:
設計效果圖:



設計師人氣榜
提交信息,試試看!
已有92人提交



北京