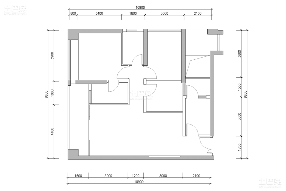
戶型:三居 3#D戶型
-
日期:2016-04-28
-
點擊:844
戶型:三居 3#D戶型
設計效果圖:



設計師人氣榜
提交信息,試試看!
已有92人提交



北京